通知公告
当前位置: 学院首页 > 通知公告 > 正文

【采购公告】机械学院AB 摆头铸件加工服务院处磋商公告

发布时间:2019-09-30 点击数:

项目名称:AB 摆头铸件加工服务

项目联系方式:项目联系人: 老师

项目联系电话: 18392186598jun_zha@xjtu.edu.cn

采购单位联系方式:

采购单位: koko体育·(中国)官网

联系人和联系方式: 齐老师82663920-802,nancy1983@xjtu.edu.cn

联系地址: 西安市咸宁西路28号西安交通大学西二楼西261

一、采购项目的名称、数量、简要规格描述或项目基本概况介绍:

AB 摆头铸件加工服务 一次

1. 材料为qt60040Cr

2. 外形尺寸长 1918mm×宽 1390mm×高1675mm

3. 交货期:技术细节得到确认并在收到预付款后 2 个月。

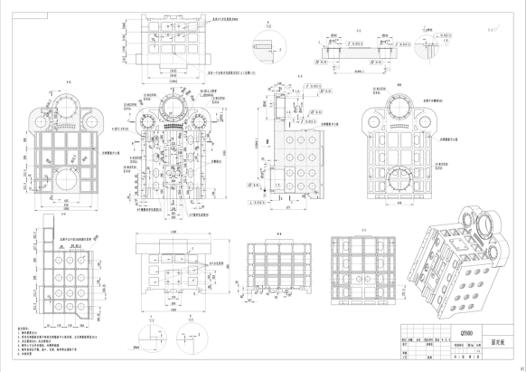
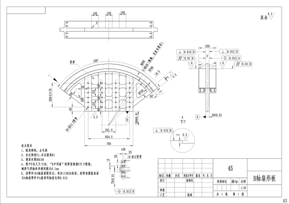
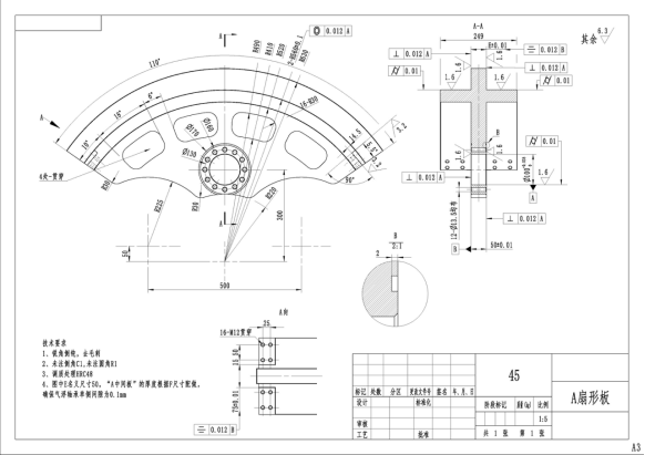
  主要的大型部件工程图如下所列。

4. 质量要求技术标准:国标或行业标准产品质保期:为非人为因素影响下壹年

二、对供应商资格要求:

(一)供应商的资格要求

1. 具有独立法人资格及相关证照,具有良好信誉及合同履行能力,具有良好资金、财务状况。
2. 供应商应为所提供产品的生产企业,或具有所提供生产企业出具的针对本项目的产品授权书。
3. 供应商不得被列入失信被执行人、重大税收违法案件当事人名单、政府采购严重违法失信行为名单记录,且在西安交大采购办供应商库中无不良记录。

(二)供应商报名方式

符合本公告要求的供应商,发送邮件至nancy1983@xjtu.edu.cn报名。 报名时间:2019年1001日至20191005日。报名信息须包含:供应厂商信息、法定代表人信息、委托代理人信息、联系方式(邮箱、电话)等。

三、采购文件的发布时间及地点等

预算金额:29.8万元

磋商时间:2019年100914:40

获取磋商文件时间: 20191001日至20191005日(双休日,法定节假日除外) 

获取磋商文件方式:报名的供应商将通过邮件获取磋商文件

响应文件递交时间: 2019年100914:40

响应文件递交地址: 西安市碑林区咸宁西路28号西安交通大学koko体育·(中国)官网西二楼西二东337教室

响应文件开启时间: 2019年100914:40

响应文件开启地点: 西安市碑林区咸宁西路28号西安交通大学koko体育·(中国)官网西二楼西二东337教室

地址:陕西省西安市咸宁西路28号 邮编:710049
           版权所有:koko体育·(中国)官网     站点维护: 网络信息中心 陕ICP备06008037号